Dossier Loi sur l’eau ZAE Segla 2
Seysses (31)
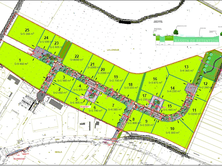
SEGLA 2 est une extension de la ZAE existante afin de relancer l’économie de cette zone. Porté par LE MURETAIN AGGLO, le projet prévoit la création de 25 lots destinés à recevoir diverses activités.
Maître d’ouvrage :
Le Muretain Agglo
Maître d’œuvre :
Atelier d’Aménagement et d’Urbanisme (2AU)
Année de réalisation :
2021
Superficie :
9,7 ha
Capacité :
25 lots
Mission :
Réalisation d’un Dossier Loi sur l’Eau concernant la ZAE SEGLA 2 à Seysses
Ouvrages :
-
Gestion des eaux des lots à la parcelle
-
Collecte des eaux des voiries par fossés équipés d’un géotextile anti-contaminant
-
Stockage et décantation de ces eaux dans un bassin aérien sec enherbé de rétention-infiltration dimensionné pour une pluie centennale avec un débit de rejet limité à 5l/s/ha, soit de capacité 430 m3